CZ DE +420 608 712 228 inray@seznam.cz
Solar profil

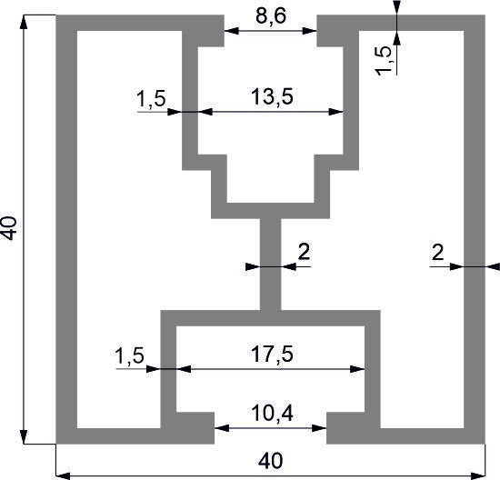
Solar profil

Instaluje se na střešní konzoly a slouží k uchycení FV panelů pomocí krajních a středových příchytek.

Materiál je hliník

Délka 3000mm.